
Difficult Figure
Instructor: Andrew Zago
This studio’s concerns are largely disciplinary. It views the discipline as a complexly wrought but evolving edifice made of numerable assertions, breakthroughs, disputations, reversals, and inversions serving to provide a springboard for architectural novelty. Disciplinary interests in architecture are both in flux and viewed by many as disengaged from the world and its pressing needs. This studio posits that this flux reflects the field’s unease as we collectively grope for architectural expressions that are both novel and fundamental and, that it is precisely from architecture’s disciplinary obsessions that we create new ways to engage and reflect upon the world. The studio will consider the progression of increasingly eccentric, a tectonic works of architecture over the last fifty years and contrast it to current reactionary formal impulses. The studio will examine these opposing tendencies and propose that the urge to return to stability is both inevitable and made impossible by our recent past. This return occurs not a circle, as some would hope, but as a spiral with the intervening years of architectural complications causing a phase-shift. This ur-form condition will be explored through the reexamination of pyramidal compositions. This exploration will be done through building proposals, in dialog with other building projects, and with reference to works in painting, sculpture, and other allied fields. It will operate under the assumption that the haptic sensation created by drawings and models is an inextricable part of forming these primal conditions. This studio is technologically agnostic. It encourages extra-building explorations, but works from the premise that architecture is mostly about buildings.


Difficult Pyramids | Coal Breakers
For the first half of the semester the studio start analyzing the Pyramidal formal aspects of series of coal breakers from Pennsylvania. Each student started the process from modeling the coal breakers from images selected by student’s individually. The horizontal stack quality of these forms were examined throughout the process of modeling these coal breaker both digital and analog, without knowing any information about the interiority of these industrial buildings.




Block Printing






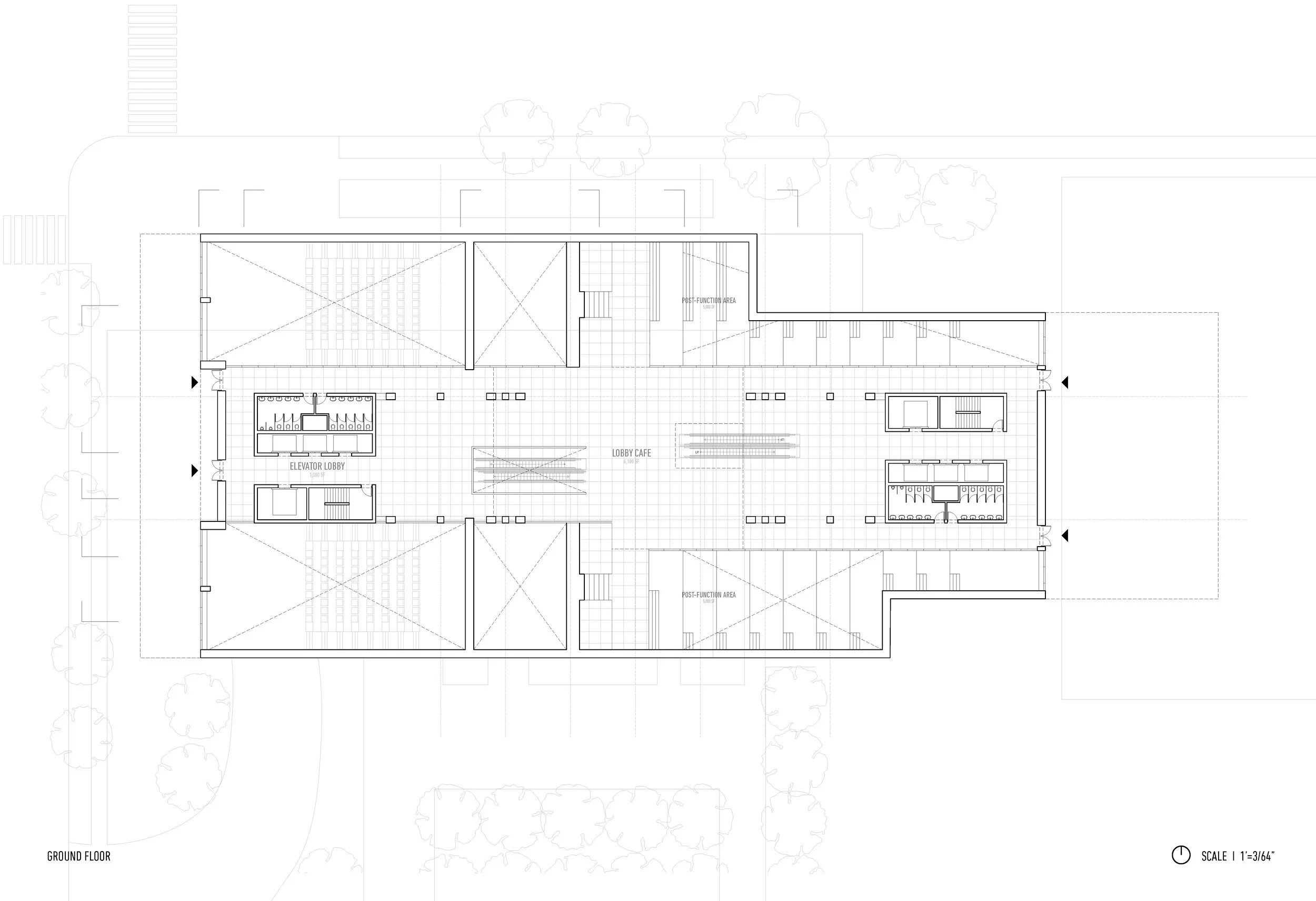
Plans








Sections






Model Photos


